Działka na sprzedaż Pabianice (gw), Jadwinin

19500.00 m²
117,95 zł/m2
HPK-GS-11053
Oblicz ratę kredytu

2 299 999 zł

Działka na sprzedaż
Oferta na wyłączność

Szczegóły oferty

Symbol oferty HPK-GS-11053
Powierzchnia 19 500,00 m²
Przeznaczenie działki budowlana
Zagosp. działki niezagospodarowana
Ukształtowanie działki płaska
Kształt działki prostokąt
Ogrodzenie działki brak
Woda w drodze
Dojazd asfalt
Otoczenie zabudowa jednorodzinna
Położenie obrzeża miasta
Prąd w ulicy
Kanalizacja w pobliżu
Pomieszczenia

Opis nieruchomości

Jadwinin | Gm. Pabianice | MPZP | Woj.Łódzkie

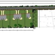
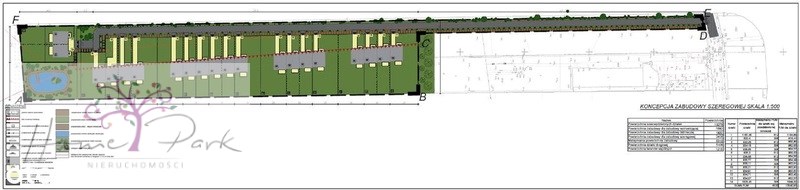
Na sprzedaż grunt inwestycyjny o powierzchni 19 500m2 z przeznaczeniem pod zabudowę mieszkaniową jednorodzinną oraz bliźniaczą, objęty Miejscowym Planem Zagospodarowania Przestrzennego.

Nieruchomość stanowi atrakcyjną propozycję dla dewelopera lub inwestora planującego realizację kameralnego osiedla domów jednorodzinnych w dynamicznie rozwijającym się rejonie podmiejskim.

Kluczowe parametry inwestycyjne:

  • powierzchnia: 19.500m2
  • plan miejscowy: 4MR.MN.U
  • przeznaczenie: 
  • zabudowa mieszkaniowa jednorodzinna
  • zabudowa bliźniacza 
  • dopuszczone usługi
  • możliwość realizacji osiedla domów jednorodzinnych
  • kształt: regularny, wydłużony prostokąt
Wykonano wstępne koncepcję podziału geodezyjnego, uwzględniając projektowaną drogę wewnętrzną o szerokości 10m, zapewniającą dogodny dostęp do projektowanych działek.

MEDIA:
  • prąd - w drodze
  • woda - w drodze dojazdowej
  • kanalizacja - możliwość podłączenia
Dojazd do nieruchomości drogą asfaltową, całoroczną.

LOKALIZACJA:
Jadwinin | gm. Pabianice

Nieruchomość położona w spokojnej okolicy, w sąsiedztwie węzła S8 Pabianice Południe, co zapewnia szybki dojazd do głównych ośrodków regionu. 
  • Łódź - ok.15 minut
  • Pabianice - ok.5-10minut
  • Zduńska Wola / Sieradz - szybki dojazd trasą S8
Otoczenie stanowią tereny zielone oraz zabudowa jednorodzinna, co sprzyja realizacji inwestycji mieszkaniowej o charakterze podmiejskim.

Stan prawny:
  • własność
  • nieruchomość bez obciążeń
  • dostępna od zaraz
Nieruchomość stanowi atrakcyjny grunt pod realizację kameralnego osiedla domów jednorodzinnych lub zabudowy bliźniaczej. Duża powierzchnia działki, obowiązujący MPZP, dostęp do mediów oraz projektowana droga wewnętrzna umożliwiają racjonalne zaplanowanie inwestycji deweloperskiej.

Bliskość węzła S8 Pabianice Południe zapewnia szybki dojazd do Łodzi i okolicznych miast, co dodatkowo zwiększa atrakcyjność lokalizacji dla przyszłych nabywców.

Zapraszam do kontaktu.

 

Lokalizacja nieruchomości

Kalkulatory

Kalkulator kredytowy

Wysokość raty

PLN
%

Kalkulator kosztów

Podatek od czynności cywilno-prawnych

Taksa notarialna
(opłata notarialna)

Wniosek o wpis do KW

VAT od prowizji
agencji nieruchomości

VAT od taksy notarialnej
(opłaty notarialnej)

Prowizja agencji nieruchomości

Wypisy aktu notarialnego

Razem

Uwaga: mogą wystąpić dodatkowe opłaty za założenie księgi wieczystej oraz ustanowienie hipoteki.

PLN
PLN
PLN
PLN
PLN
PLN
%
PLN

Proszę wprowadzić poprawne imię i nazwisko
Proszę wprowadzić poprawny numer telefonu
Proszę wprowadzić poprawny adres e-mail
Proszę zaznaczyć wymagane zgody
Rozwiąż równanie:
15 9
Niepoprawny wynik