Lokal na wynajem Pabianice, Warszawska

290.00 m²
45,16 zł/m2
parter
HPK-LW-11098

13 095 zł

Lokal na wynajem
Oferta na wyłączność

Szczegóły oferty

Symbol oferty HPK-LW-11098
Powierzchnia 290,00 m²
Rodzaj budynku BUDYNEK BIUROWY
Opłaty wg liczników prąd, woda
Piętro parter
Liczba pięter w budynku 2
Stan lokalu do wprowadzenia
Typ kaucji dwumiesięczna
Okna PCV
Rodzaj lokalu wielopoziomowy
Przeznaczenie lokalu biurowo - magazynowy, biurowy, usługowy
Dojazd droga utwardzona
Ogrzewanie C.O. lokalne
Umeblowanie tak
Usytuowanie dwustronne
Możliwość parkowania tak
Położenie lokalu spokojna ulica
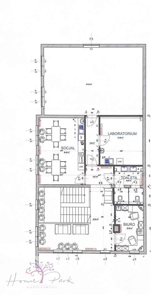
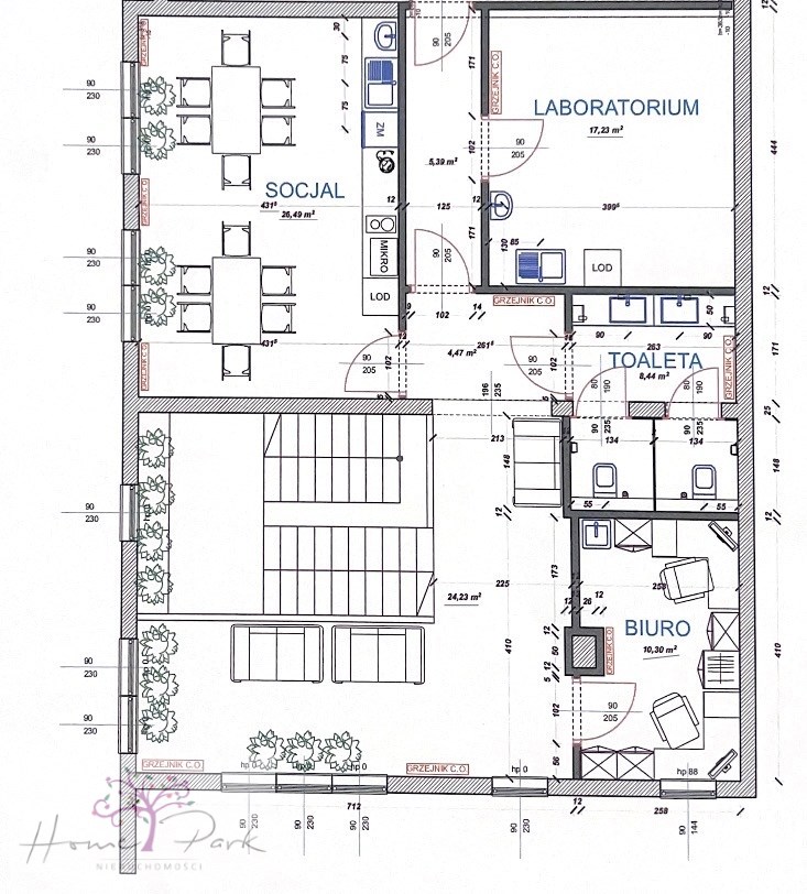
Pomieszczenia
Maria Aleksandrowicz

Maria Aleksandrowicz


Nr licencji: 8137

Napisz wiadomość 104 Ofert

Opis nieruchomości


       Nowoczesne Biuro 291 m² + Opcja Magazynu | Pabianice, ul. Warszawska

Szukasz reprezentacyjnej siedziby dla swojej firmy w Pabianicach? Oferujemy wynajem nowoczesnego, dwupoziomowego lokalu biurowego o wysokim standardzie, zlokalizowanego przy ul. Warszawskiej.

Układ i Powierzchnia (łącznie 291 m²):

  • Parter (ok. 133 m²): Przestronne pomieszczenie biurowe, 2 szatnie oraz 2 łazienki.

  • Piętro (ok. 158 m²): 2 duże pomieszczenia biurowe, w pełni wyposażony aneks kuchenny oraz łazienka.

Standard Wykończenia:

  • Nowoczesny design: Przeszklone wnętrza, stylowe detale z cegły, wysoka jakość materiałów.

  • Pełne umeblowanie: Lokal gotowy do wejścia „od zaraz”, wyposażony w meble biurowe.

  • Media: Szybki internet, prąd i woda (rozliczane według zużycia).

  • Komfort: 7 dedykowanych miejsc parkingowych w cenie najmu!


Dodatkowa Powierzchnia Magazynowa!

Dla firm potrzebujących zaplecza logistycznego oferujemy możliwość wynajęcia dodatkowej powierzchni magazynowej znajdującej się na terenie obiektu:

  • Magazyn 1: 100 m²

  • Magazyn 2: 40 m² (Istnieje możliwość wynajęcia całości lub wybranych modułów).


Warunki Finansowe:

  • Czynsz najmu: 40 zł netto.

  • Ogrzewanie: Bardzo korzystna stawka – tylko 5 zł/m².

  • Media: Prąd i woda płatne według liczników.

  • Kaucja: Dwumiesięczna.

Lokalizacja: Ul. Warszawska zapewnia doskonałą ekspozycję Twojej firmy oraz błyskawiczny dojazd do Łodzi, drogi S14 i autostrady A1.


Zapraszam do kontaktu i na prezentację lokalu!

Lokalizacja nieruchomości

Proszę wprowadzić poprawne imię i nazwisko
Proszę wprowadzić poprawny numer telefonu
Proszę wprowadzić poprawny adres e-mail
Proszę zaznaczyć wymagane zgody
Rozwiąż równanie:
18 5
Niepoprawny wynik